Höfe, Ring und Herz
Aussen hat sich kaum etwas verändert, im Innern ist fast alles neu. Das Architekturbüro EM2N hat den Hauptsitz der UBS an der Zürcher Bahnhofstrasse umgebaut.
Architektur bildet nicht nur die Bedürfnisse einer Bauherrschaft ab, sie ist auch ein Spiegel des gesellschaftlichen Umfelds. Vor mehr als hundert Jahren hatte die Schweizerische Bankgesellschaft (SBG) an der Zürcher Bahnhofstrasse den Münzhof errichtet. Damals war klar, welche Werte ein Bankgebäude verkörpern sollte: Sicherheit und Vertrauen. Dafür entwarfen die Architekten Pfleghard & Haefeli ein solides Gebäude mit wohldosierter Monumentalität. Nach aussen gab sich das Haus verschlossen. Doch wer in der lichtdurchfluteten Schalterhalle stand, hatte keine Zweifel: Hier ist mein Geld gut aufgehoben.
Heute ist das anders. Einfachere Bankgeschäfte wie der Zahlungsverkehr laufen weitgehend digital ab. Hingegen wird der persönliche Kontakt bei der Beratung individueller Themen immer wichtiger. Anders als früher sind dafür nicht mehr dicke Mauern und eindrückliche Schalterhallen das Rezept, sondern Offenheit und Transparenz.
Die Bahnhofstrasse 45 zu einem offenen, einladenden Gebäude zu machen, war denn auch die Kernaufgabe im Studienauftrag, zu dem die UBS 2012 neun Generalplaner einlud. Die Bank wünschte sich einen modernen, repräsentativen Hauptsitz und eine attraktive Geschäftsstelle. Um das zu erreichen, wollte sie insbesondere das Erdgeschoss öffnen und beleben. Nach dem zweistufigen Verfahren stand fest: Das Team um das Zürcher Architekturbüro EM2N, das das Projekt in enger Zusammenarbeit mit dem Büro Hürlemann entwickelt hat, traf die Vorstellungen der Jury am besten. Gut sechs Jahre nach dem Wettbewerbsgewinn ist der Umbau fertig.

Offenheit im Erdgeschoss
Von aussen hat sich kaum etwas verändert. Das war von Anfang an klar und angesichts der denkmalpflegerisch wertvollen Altbauten anders kaum möglich. Am alten Ort geblieben ist auch der Haupteingang – dort, wo ihn die eindrücklichen Säulen seit über hundert Jahren in der Fassade markieren. Doch wo einst die Vitrinen mit den Börsenkursen flimmerten und sich den Besuchern eine mächtige Drehtür entgegenwölbte, empfängt einen nun ein lichter Vorraum. Eine leuchtende Decke sorgt für Helligkeit, und eine grosse Glasfront gibt den Blick frei nach innen bis zur historischen Schalterhalle. Vom hellen Vorraum aus durchquert man den dunkel gehaltenen Windfang, der in den wiederum hell erleuchteten Empfangsbereich führt. Das Schmuckstück des alten Münzhofs findet man auf Anhieb: die historische Schalterhalle. Sie erstrahlt wieder im Glanz von 1917, spielt heute aber als Baudenkmal und als Drehscheibe der UBS-Geschäftsstelle eine andere Rolle. Geradeaus geht es zu den Kundenschaltern und zur Beratung, links in die Automatenzone und rechts in das UBS-Forum, einen knapp 200 Quadratmeter grossen Raum für vielfältige Anlässe.
Als die SBG in den Fünfzigerjahren ihren Hauptsitz in seinen heutigen Dimensionen erweiterte siehe ‹1954–1962: Ein neuer Hauptsitz zum Jubiläum›, Seite 27, ging an der Bahnhofstrasse die Angst um, dass sie als Bankenstrasse veröden würde. Deshalb ordnete die SBG an den Erdgeschossfassaden Läden an, die auch nach dem jüngsten Umbau erhalten blieben. Die neue Bar 45 an der Ecke zur Münzgasse sorgt für zusätzliche Belebung und nimmt die gastronomische Tradition des Orts wieder auf – gegenüber lag einst das Café Huguenin.

Konzept mit drei Teilen
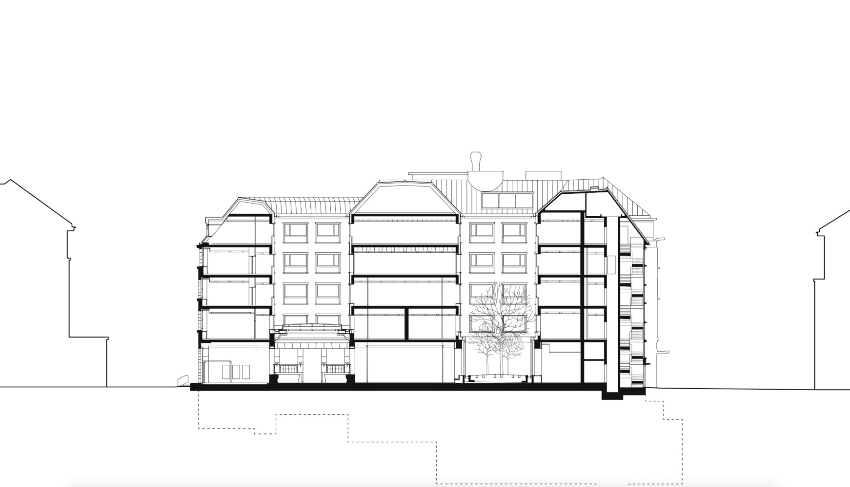
Vor dem Umbau war der UBS-Hauptsitz aussen ein kompaktes, eindrückliches Gebäude. Im Innern jedoch hatten ihn die Umbauten im Lauf der Jahrzehnte zu einem unübersichtlichen Konglomerat gemacht, in dem die Orientierung schwierig geworden war. Übersichtlichkeit zu schaffen, war deshalb eine wichtige Aufgabe der Architekten. EM2N meisterten sie mit einem scheinbar einfachen, aber wirkungsvollen Konzept. Höfe, Ring und Herz heisst ihre Lösung. Die Grundlage dafür war bereits vorhanden: die beiden Höfe über den Glasdächern der historischen Schalterhalle und der Wertschriftenhalle von 1962.

Die Höfe belichteten die beiden Hallen und die umliegenden Räume in den Obergeschossen, zur Orientierung im Haus trugen sie jedoch kaum bei. Im Bau von 1917 konnte man aus den Vestibülen zwar einen Blick in den Hof und auf das Glasdach werfen. Der Hof des Erweiterungsbaus hingegen war von kleinteiligen Räumen umringt und damit nicht wahrnehmbar.
Nun gaben EM2N diesem zweiten Hof die nötige Präsenz, um als Orientierungspunkt zu funktionieren. Die Architekten hoben die längst nicht mehr benötigte Wertschriftenhalle auf und führten stattdessen den Hof bis auf den Boden des Erdgeschosses. Die Dimensionen blieben dabei ebenso erhalten wie die Stützenverkleidung aus grauem Naturstein. Doch der Raum wurde umgepolt: Bewegte sich früher in diesem Bereich das Publikum, kann es ihn heute nur noch von aussen betrachten. Die einstige Halle ist zu einem dicht bepflanzten, von den Landschaftsarchitekten Balliana Schubert gestalteten Grünraum geworden.
Das zweite Element des architektonischen Konzepts ist das Herz. Im Erdgeschoss ist dies das UBS-Forum, ein stützenfreier Raum, der sich zwischen den beiden Höfen aufspannt und so die Struktur des Hauptsitzes ablesbar macht. Neben den Höfen und dem Herz ist der Ring in jedem Geschoss das dritte Element des architektonischen Konzepts. Ein umlaufender Korridor bindet alle Räume zusammen, schafft so kurze Wege und vielfältige Wegbeziehungen und trägt ebenfalls zur Orientierung bei. Nirgends läuft man in eine Sackgasse, immer wieder öffnet sich ein Blick in einen der Höfe. Entlang dieses Rings sind im ersten Obergeschoss die Kundenbesprechungsräume angeordnet. Der zweite und der dritte Stock sind der Geschäftsleitung vorbehalten. Im vierten Stock schliesslich sind auf der ganzen Fläche Büroarbeitsplätze eingerichtet. Wie an anderen Standorten gibt es auch hier keine fest zugeteilten Arbeitsplätze; die persönlichen Utensilien finden in einem Caddy oder einem Schliessfach Platz.

Um die drei Teile Höfe, Herz und Ring zusammenzubinden und einen Rundgang durch das Haus erst zu ermöglichen, ist ein weiteres Element essenziell: das Rückgrat. Dieses hat die Form eines gläsernen Lifts und einer gewendelten Treppe. Es zieht sich vom ersten Untergeschoss durch das ganze Gebäude über das Glasoberlicht bis zum Zürcher Himmel. Dieses Rückgrat erweitert sich im ersten bis dritten Obergeschoss um einen Empfangsraum, der jeweils in zwei wie Rippen daran angelagerte grosszügige Vestibüle führt. Mit ihren Fenstern zum einen oder zum anderen Hof tragen diese Vorräume ebenfalls dazu bei, dass man sich im Haus zurechtfindet. Im ersten und zweiten Stock des Altbaus hat man die historische Ausstattung wieder eingebaut und somit die Verbindung zum alten Münzhof hergestellt.

Terrazzo und Parkett
Bei den Materialien bewegten sich EM2N im Spannungsfeld zwischen dem Bestand und dem Anspruch, ein modernes, offenes Gebäude zu schaffen. Im Zuge der Erweiterung vor sechzig Jahren zogen die Architekten an der Bahnhofstrasse für den neuen Teil einfach das historische Kleid des Münzhofs weiter. Erst an der Pelikan- und der Nüschelerstrasse war der Neubau als solcher zu erkennen. Weil inzwischen der ganze Komplex unter Denkmalschutz steht, stellten sich EM2N die Frage nach dem richtigen Gesicht gar nicht. Die Fassaden waren ebenso zu erhalten wie die grün verwitterten Kupferdächer. Gestaltungsspielraum gab es bei den Hoffassaden, die neu aufgebaut wurden. Im Einklang mit der Denkmalpflege gestalteten die Architekten diese als verputzte Lochfassaden.

Im Innern war von der ursprünglichen Substanz nur noch wenig vorhanden. Geschützt sind neben der historischen Schalterhalle und mehreren Treppenhaus- und Liftanlagen das Tragwerk aus den Fünfzigerjahren und etliche Schächte. EM2N entwickelten eine Material- und Farbpalette, die dem neuen Münzhof einen starken Charakter gibt, sich aber gleichzeitig auch an das Vorhandene anlehnt. So sind die öffentlichen Bereiche des Erdgeschosses, das UBS-Forum und die Haupttreppe samt Vorplatz mit einem Terrazzoboden belegt. Dieser führt die steinerne Fassade ins Innere und vermittelt zu den historischen Belägen in der Schalterhalle und den Treppenhäusern. In einzelnen Bereichen veredeln ihn Naturstein-Intarsien wie ein imaginärer Teppich.
Die Vestibüle, der Korridorring, die Sitzungssäle der Konzernleitung und die Kundenräume sind mit Parkett belegt. Der dunkle Farbton der Räuchereiche, die breiten Riemen und die abgeschrägten Kanten verankern den Belag in der Gegenwart, die Verlegeart im Fischgratmuster verweist auf die Vergangenheit. In den Vestibülen setzen Teppiche farbige Akzente.
An den Decken bildet ein eigens entwickeltes System von breiten Funktionsschienen aus Aluminium einen Raster. Darin eingelegt sind die Elemente der stoffbespannten Kühldecke. Dieses Prinzip gilt auch im grossen Saal der Konzernleitung, bloss folgen die Aluminiumprofile hier einer eigenen Ordnung. Der Künstler und Geometrie-Ingenieur Urs B. Roth überführte die Ellipsenform des Sitzungstisches in eine rechteckige Deckengeometrie. Dadurch sind die 43 Leuchtenpunkte präzis auf die Deckenfelder und auf den Tisch abgestimmt. Dieser besteht – wie die Empfangskorpusse im Haus – aus Brauneiche.
Die Wände schliesslich sind grundsätzlich weiss. Allerdings setzen auch hier andere Materialien und Farben gestalterische Akzente. So sind die Rückwände der Empfangsbereiche im Haupttreppenhaus mit glänzend schwarzem Naturstein belegt. Einzelne Wände in den Kundenräumen und in allen Büros sind aus akustischen Gründen mit einem hellen Stoff bespannt. Ein wichtiges Material ist auch hier Aluminium, das bei den grossen Türen Verwendung fand und eine elegante Brücke zu den Fünfzigerjahren schlägt. Die Glaswände der Besprechungszimmer verwandeln sich auf Knopfdruck von transparentem Klar- in diskretes Milchglas.
Auch die Liftkabine sieht aus der Ferne aus, als wäre sie aus Milchglas. Doch die genaue Betrachtung zeigt: Es ist Naturstein. Eine hauchdünne, gerade mal 0,7 Millimeter dicke Schicht aus Carrara-Marmor ist zwischen zwei Gläser gespannt. Damit kann sich die Kundschaft im gläsernen Lift diskret bewegen, und er ist zum Bauteil geworden, das die Ansprüche der UBS an einen zeitgemässen Hauptsitz in sich vereint: so viel Offenheit und Transparenz wie möglich, so viel Diskretion wie nötig.



Dieser Beitrag stammt aus der Ausgabe 1-2/2019 der Zeitschrift Hochparterre.
Erneuerung UBS-Hauptsitz, 2018
Bahnhofstrasse 45, Zürich
Bauherrschaft: UBS, Zürich
Totalunternehmer: Implenia Schweiz, Dietlikon
Architektur: EM2N Architekten, Zürich; Hürlemann, Zürich
Mitarbeit: Mathias Müller, Daniel Niggli, Björn Rimner, Nils Heffungs, Stephan Hürlemann
Generalplanerteam: Ahochn, Dübendorf; Amstein + Walthert, Zürich; Arup Deutschland, Berlin; Bakus Bauphysik & Akustik, Zürich; Balliana Schubert Landschaftsarchitekten, Zürich; BLM Haustechnik, Zürich; Bringolf Irion Vögeli, Zürich; B + P Baurealisation, Zürich; GKP Fassadentechnik, Aadorf; Gruner Wepf, Zürich; Gruner, Basel; Hefti Hess Martignoni, Aarau; Planbar, Zürich; RGBP, Thalwil; Rhenus Traffic Solutions / A. Aegerter & O. Bosshardt, Basel; Rohr Kälte Consulting, Watt