Rückseitig eingehängte Photovoltaik-Module schaffen ein homogenes Fassadenbild. Fotos: Markus Frietsch
Im Auftrag von Ernst Schweizer AG

Energiegewinner von Kopf bis Fuss

Das Innovationscenter des Sensorspezialisten Baumer in Frauenfeld liefert nicht nur Ideen, sondern auch Strom. In die homogene Fassade sind mehr als 1000 Quadratmeter Photovoltaik-Elemente integriert.

Das auf Sensorlösungen spezialisierte Unternehmen Baumer ist auf Wachstumskurs und hat seinen Hauptsitz in Frauenfeld ausgebaut. Das neue Innovation Center mit mehr als 100 Arbeitsplätzen soll ein Vorzeigeprojekt in Sachen Nachhaltigkeit und Energieeffizienz sein. Während Erdsonden und Wärmepumpe die Innenräume im Winter heizen und im Sommer kühlen, liefern die Photovoltaik-Module auf dem Dach und an der Fassade Strom, den das Unternehmen direkt nutzen kann. Zusammen mit den Photovoltaik-Anlagen, die auf den bereits bestehenden Werkgebäuden montiert sind, erntet Baumer jährlich etwa 305 000 kWh Sonnenenergie – das sind immerhin elf Prozent des am Standort Frauenfeld benötigten Stroms.


Was wie eine elegante Glasfassade aussieht, liefert Strom: das Innovationscenter in Frauenfeld.

Auf Wachstumskurs befindet sich auch das Geschäft der Firma Ernst Schweizer AG mit Solarfassaden. Das Familienunternehmen zeichnete beim Innovation Center für die Produktion und die Montage der gesamten Fassade verantwortlich. Dazu zählen die zugrunde liegende Pfosten-Riegel-Konstruktion, sämtliche Fenster und Türen in Aluminium sowie mehr als 1000 Quadratmeter Photovoltaik-Fassadenmodule. Dass alles aus einer Hand geplant werden konnte, war in Sachen Effizienz ein grosser Vorteil, aber auch ausschlaggebend für die Qualität des Baus. Mit nur einem Vertrags- und Ansprechpartner vereinfachte sich die Koordination für denTotalunternehmer, der die Aufträge zuerst einzeln ausgeschrieben hatte, massgeblich; die Bauherrschaft profitierte vom resultierten Minderaufwand, das Projekt vom gebündelten Fachwissen. Besonders augenfällig wird die Expertise der Firma Ernst Schweizer in der Entwicklung der Solarfassade des Innovationscenters. «Photovoltaik-Systeme auf dem Dach sind grundsätzlich gleich und haben einen grossen Wiederholungseffekt, Photovoltaik-Systeme an der Fassade sind jedes Mal anders», sagt Pius Baumeler, der bei der Akquisition und der Planung als Vertriebsleiter bei Ernst Schweizer tätig war. Auch für das Innovation Center wurde eine spezifische Unterkonstruktion entwickelt.


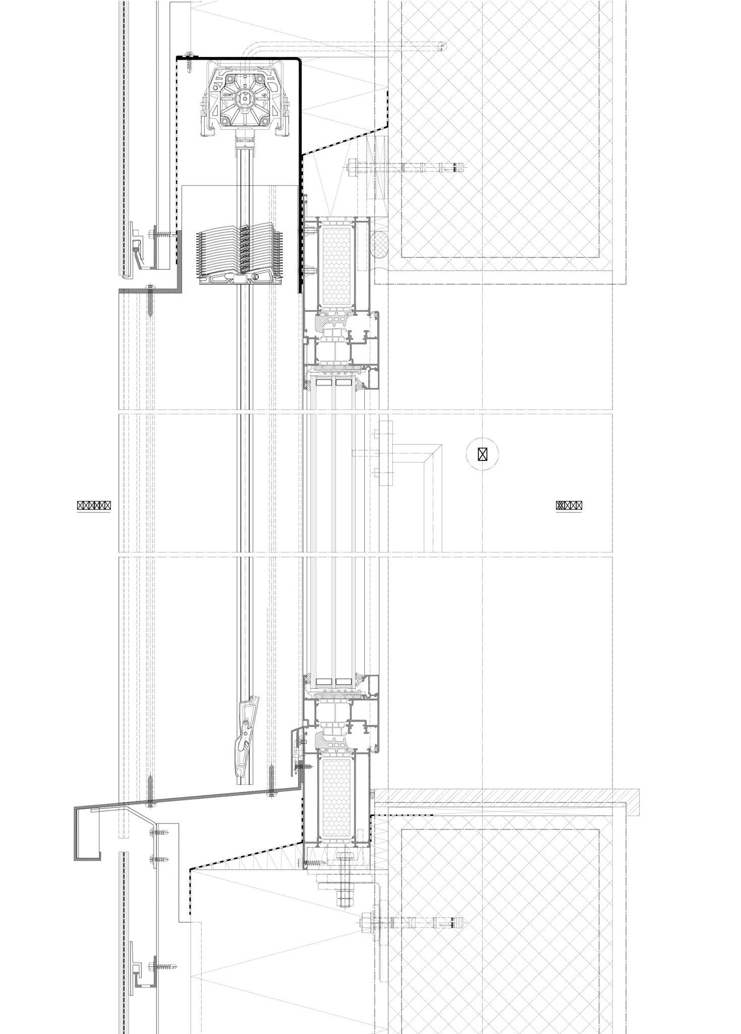
Konstruktionsschnitt der Fassade

Auf den Rohbau montierte man örtlich wärmegedämmte Konsolen und vertikal durchlaufende T-Profile. Danach folgten horizontale Halteprofile, die an den vertikalen T-Profilen befestigt wurden. In die Halteprofile liessen sich nun die Photovoltaik-Module rückseitig einhängen, im Bereich der Hinterlüftung verkabeln und schliesslich gegen seitliches Verschieben absichern. Das Ergebnis sind eine unsichtbare Konstruktion und eine Gebäudehülle, die so glatt und homogen ist wie eine Glasfassade. In Erscheinung treten einzig die dunklen Photovoltaik-Module, die beinah fugenlos aneinandergefügt sind und den schlichten Baukörper in ein dunkel glänzendes Kleid hüllen. Durch die einfache, aber präzise Anordnung der stets gleich proportionierten, aber abwechselnd horizontal oder vertikal montierten Module strahlt die Fassade eine ruhige Eleganz aus.


Je nach Lichteinfall wirken die Photovoltaik-Module wie spiegelnde Glaselemente.

Hier in matter Erscheinung: das regelmässige Fassadenbild aus Modulen und Fenstern.

In Zukunft will sich die Firma Ernst Schweizer noch stärker mit Innovationen im Markt positionieren, namentlich als Systemanbieter für Holz-Metall-Fenster sowie Falt- und Schiebewände, als Marktführer im Bereich Briefkästen und Paketboxen sowie als stark wachsender Anbieter von Solarsystemen in Europa, insbesondere mit den etablierten Montagesystemen ‹MSP› und ‹Solrif›. Der Geschäftsbereich Fassaden mit dem Projektgeschäft hingegen ist auf Anfang 2024 an ein anderes Traditionsunternehmen verkauft worden: Die Firma Geilinger, die vorwiegend auf Metallfassaden, Fenster, Türen und Metallbau spezialisiert war, bietet vermehrt auch die Planung, Produktion und Montage der gesamten Gebäudehülle an. Sie setzt in Zukunft vermehrt auch auf Solarfassaden und kann dabei auf die Kompetenz und die Produkte von Ernst Schweizer zurückgreifen. Die Faktoren, die das Innovation Center zum Erfolg gemacht haben – das fachliche Wissen, die Synergien in Planung, Produktion und Montage –, bleiben dank dieser Partnerschaft auch in Zukunft erhalten.


Die Rubrik Werkplatz ist eine Kooperation von Hochparterre mit ausgesuchten Firmen und Institutionen des Werkplatzes Schweiz.

close

Kommentare

Andreas Konrad 04.04.2024 06:35
Man kann es schönreden, wie man will: Die Ingenieurleistung wirkt wie ein Wegwerfbau aus den 70-ern. Da hilft auch kein billiger Marketingsprech wie « Energiegewinner » oder « Vorzeigeprojekt » . Noch der redlichste Umweltschützer wendet sich ob soviel Trostlosigkeit angewidert ab. Das muss besser werden.
Kommentar schreiben