Auf dem Hobelwerk-Areal in Oberwinterthur hat die Baugenossenschaft ‹Mehr als Wohnen› ihr zweites Projekt realisiert. Fünf Häuser von verschiedenen Architekturbüros schaffen ein Quartier von eigenem Charakter.
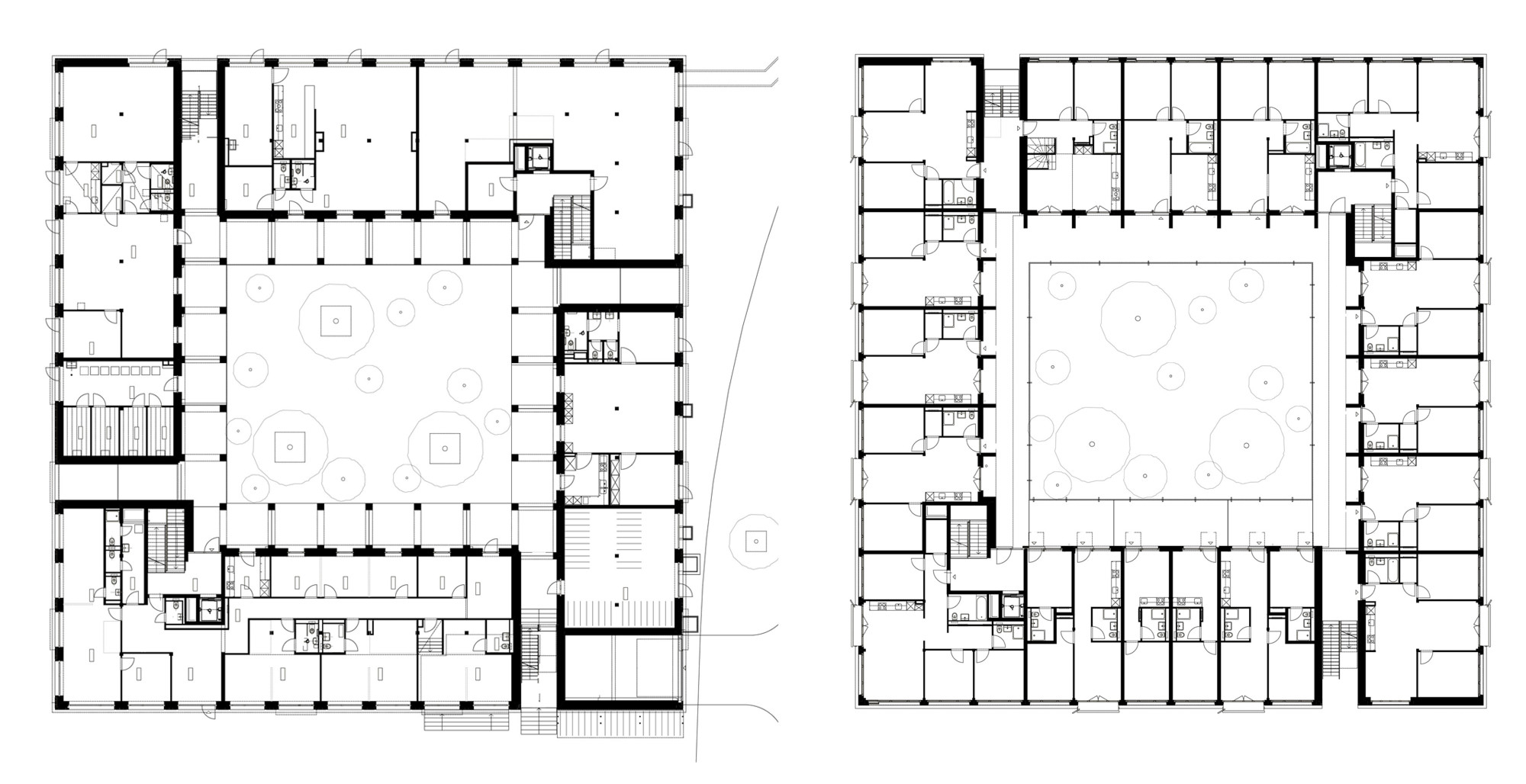
Das Hobelwerk bietet auf kleinem Raum eine grosse Vielfalt an Wohnformen und Lebensräumen. Die Landschaftsarchitektur von Studio Vulkan bildet die Grundlage für ein abwechslungsreiches kleines Quartier, das sich aus ehemaligen Industriebauten und neu erstellten Wohnhäusern, Gemüsegärten und Spielflächen zusammensetzt. Mäandernde Kieswege führen zwischen Melonen- und Tomatenstauden zur früheren Fabrikhalle des Sägewerks, die vom Baubüro In Situ sanft instand gesetzt wurde. Direkt angrenzend bietet der gedeckte Hobelwerkplatz Schutz vor der Witterung und der sommerlichen Hitze. Den Kindern des Quartiers dient er etwa zum Rollschuhfahren, den Erwachsenen als Treffpunkt. Der Zweiklang aus historischer Halle und gedecktem Platz bildet das Herz des Hobelwerk-Areals und vermittelt die Intention der Baugenossenschaft ‹Mehr als Wohnen›, einen Beitrag zu leisten zu einem Stück ökologisch und sozial nachhaltiger Stadt. Nach dem Kauf des Areals durch die Genossenschaft entstanden in zwei Etappen fünf in Volumetrie und Typologie unterschiedliche Wohnhäuser. Zwei lange Riegelbauten bilden den Rücken des Areals zu den Bahngleisen aus. Ein quadratisches Hofhaus und ein tiefer Quader rahmen Platz und Halle, ein achteckiger Wohnturm markiert den Auftakt zur Quartierstrasse.

Haus A: Südländisch anmutendes Hofhaus
In einer ersten Etappe realisierten Pool Architekten 2021 die Häuser A und B, zwei vergleichsweise konventionelle Wohnbauten mit einem breiten Wohnungsmix vom 1-Zimmer-Studio bis zur 9½-Zimmer-Gross-WG. Haus A ist ein Hofhaus, das sich von aussen aber nicht als solches zu erkennen gibt. Über vier Zugänge erschliesst sich jedoch ein südländisch anmutender Gemeinschaftshof. Einfache Materialien und eine üppige Hoflandschaft verleihen dem angenehm kühlen Arkadengang eine warme Atmosphäre. Das nach aussen geöffnete Erdgeschoss beherbergt eine Kindertagesstätte, eine Bäckerei, einen Co-Working-Space, einen Waschsalon und einen grossen Gemeinschaftsraum für Kulturveranstaltungen und Versammlungen.
Die Wohnungsgrundrisse folgen einem sich wiederholenden Prinzip: eine offene, zum innenliegenden Laubengang hin orientierte Wohnküche, ein durchgesteckter Wohnraum mit vorgelagertem Balkon und überwiegend zur Aussenseite hin orientierte, grosszügig verglaste Zimmer. An der Laubengangfassade bilden tiefe Betonschwerter doppelgeschossige Nischen aus, die subtil zwischen öffentlichem und privatem Raum vermitteln. Auf den beiden niedrigeren Gebäudeteilen befinden sich zwei Dachterrassen mit Sauna, Erholungs- und Begegnungsmöglichkeiten, die für alle Bewohner des Quartiers zugänglich sind. Dass die Regenzisternen und die Photovoltaik-Anlage mit dem darunterliegenden Gründach sichtbar sind, ist Absicht: Die Baugenossenschaft will damit das Verständnis für nachhaltige Bauweisen und eine klimabewusste Freiraumgestaltung fördern. Miriam Stierle
Haus A, 2021
Hobelwerkweg 37, Winterthur
Bauherrschaft: Baugenossenschaft ‹Mehr als Wohnen›, Zürich
Bauherrenvertretung: Topik Partner, Zürich
Architektur: Pool, Zürich
Haus B: Ein schöner Rücken kann auch entzücken
Etwas nordöstlich vom Bahnhofsgebäude Oberwinterthur erstreckt sich der lang gezogene Riegelbau von Haus B entlang der Gleise und schirmt das Areal vom Lärm der Züge ab. Auf der Hobelwerkseite entsteht so eine breite, belebte Gasse. Hierhin orientieren sich die gewerblichen Nutzungen und die öffentlichen Räume im Erdgeschoss, etwa der für Feste geeignete Gemeinschaftsraum gegenüber der Hobelwerkhalle. Massive Stützen säumen eine überdachte Vorzone, die den öffentlichen Charakter des Sockelgeschosses unterstreicht. Auf der Gleisseite befinden sich im Erdgeschoss kleinere Raumeinheiten mit zumietbaren Ateliers, Hobby- und Waschräumen. Zwei breite Durchgänge verbinden die Gasse und den Hobelwerkplatz mit dem grossen Spielplatz hinter dem Haus.
In Haus B werden 1½- bis 5½-Zimmer-Wohnungen angeboten, meist in Form von etwas grösseren und konventionelleren Grundrissen für Familien und Wohngemeinschaften. Doch auch in diesem Haus strebt die Genossenschaft eine demografisch und sozial vielfältige Mieterschaft mit unterschiedlichen Berufs- und Bildungshintergründen, Nationalitäten, Einkommen und Lebensphasen an, um die soziale Nachhaltigkeit zu gewährleisten.

Vier vertikale Treppenhäuser erschliessen zwei bis drei Wohnungen pro Geschoss. Eine Halle bildet jeweils das Zentrum der Wohnung. Zum Hobelwerk hin erweitert sich die Halle zu einem Wohnraum mit Erker, zum Gleisfeld geht sie in eine grosse Loggia über. Mit Klinker gefasste, vorspringende Erker und unterschiedlich hohe Fensteröffnungen rhythmisieren die mit Holzelementen verkleidete Fassade. Eine zur Gasse orientierte Balkonschicht schliesst das Sockelgeschoss ab. Haus B ist ein einfaches und zugleich schönes Haus. Robust, unterhaltsarm und auf eine lange Lebensdauer ausgerichtet, haben Massivbauten wie diese nachhaltig Bestand. Miriam Stierle
Haus B, 2021
Hobelwerkweg 39, Winterthur
Bauherrschaft: Baugenossenschaft ‹Mehr als Wohnen›, Zürich
Bauherrenvertretung: Topik Partner, Zürich
Architektur: Pool, Zürich
Haus C: Begrüntes Regal für kleines Geld
Für die zweite Bauetappe wünschte sich die Baugenossenschaft ‹Mehr als Wohnen› unter anderem experimentelle Wohnkonzepte. So wurde nach der Übernahme des Areals das Raumprogramm für Haus C modifiziert, und die konventionellen Wohnungsschnitte wurden um Gewerbenutzungen sowie um Micro-Co-Living-Einheiten für Ein- und Zweipersonenhaushalte ergänzt. Diese privaten Wohneinheiten mit geringer Fläche verfügen über eine Miniküche und ein eigenes Badezimmer. Darüber hinaus steht den Bewohnern ein über den Laubengang erschlossener, grosszügiger Gemeinschaftsraum zur Verfügung. In Haus C erstreckt sich dieser über drei Geschosse. Man erreicht ihn auf allen Ebenen über eine vorgelagerte Balkonschicht, die als begrünter Aussenraum genutzt wird. Im Vergleich zu den Cluster-Wohnungen bietet das Micro-Co-Living mehr privaten Rückzugsraum. Es eignet sich auch für begleitetes Wohnen.
Auch konstruktiv wurde das ursprüngliche Projekt für das Haus C nochmals fundamental neu gedacht. Aus dem konventionellen Massivbau wurde ein radikaler Holzbau, der aufzeigen sollte, wie CO2-Emissionen auf allen Ebenen reduziert werden können siehe ‹Von Bienen bis Re-Use›, Seite 20. Um trotzdem bezahlbare Mieten anbieten zu können, waren weitere Anpassungen und Optimierungen nötig. Ramser Schmid Architekten, die 2017 den Studienauftrag für die Häuser C und E gewonnen hatten, begleiteten das Projekt bis zur Phase der Ausführung. Die Ausführungsplanung übernahm die bereits in das Projekt involvierte Wild Baumanagement mit Unterstützung von GOS Architektur. Der vom Holzbauer Baltensperger konzipierte Modulbau wurde in nur vier Tagen aufgerichtet. Durch den Einsatz von Holz aus regionaler Herkunft und eine Konstruktionsweise, die das Holz als Rohstoff erhält, zeichnet sich das Gebäude als Pionierleistung für ressourcenschonendes Bauen aus. So gelang es der Baugenossenschaft ‹Mehr als Wohnen›, das Projekt Haus C als Experimentierfeld zu nutzen. Miriam Stierle
Haus C, 2023
Hobelwerkweg 41, Winterthur
Bauherrschaft: Baugenossenschaft ‹Mehr als Wohnen›, Zürich
Bauherrenvertretung: Topik Partner, Zürich
Architektur: Ramser Schmid, Zürich; Wild Baumanagement, Winterthur, und GOS, Winterthur
Holzbau: Baltensperger, Winterthur
Haus D: Re-Use-Wohnhaus in Weiss
Innovation ist ein Schlüsselwort im Selbstverständnis der Baugenossenschaft ‹Mehr als Wohnen›, und innovativ ist das von Pascal Flammer entworfene Haus D gleich in zweierlei Hinsicht. Die Auseinandersetzung mit kollektiven Wohnformen wurde in Haus D zwar nicht grundlegend neu erfunden, aber doch gewinnbringend weiterentwickelt: Je zwei Cluster-Wohnungen verteilen sich über die drei Obergeschosse. Die grossen Gemeinschaftsräume blicken über das Areal, die individuellen Zimmer sind seriell auf der Rückseite angeordnet. Dieser einfachen Grunddisposition sind geschickte Differenzierungen eingeschrieben. In einem Fall bilden drei Zimmer mit Bad eine Einheit im Cluster, in einem anderen sind zwei Einzelzimmer direkt miteinander verbunden, und in einem dritten Fall hat das Zimmer ein eigenes Bad. Die lange Küchenzeile sorgt für eine ungezwungene Trennung von gemeinschaftlichen und privaten Räumen. Nochmals anders gelebt wird im Erdgeschoss, wo vier Meter hohe, durchgesteckte Einheiten als Wohnateliers für Gewerbetreibende und Kunstschaffende dienen.
Beispielhaft ist zudem der Einsatz von wiederverwendeten Bauteilen, den In Situ als Fachplanungsbüro begleitet hat. Angesichts des engen Zeit- und Kostenrahmens ist die Menge an Re-Use-Elementen beachtlich: Sie reichen von der grossflächigen Wellblech-Aluminium-Fassade an der südwestlichen Ecke über Zimmer- und Balkonfenster bis zu Handtuchhaltern und Sanitärapparaten. Der ökologische Effekt ist bezifferbar: Je nach Bauteil reduzieren sich die Treibhausgasemissionen um 49 bis 96 Prozent. Auch architektonisch ist das interessant: Die ausschwingende Balkonschicht, die markanten Träger und der offengelegte Treppenzylinder sind formal starke Gesten, die sich gegenüber der Heterogenität der Bauteile zu behaupten vermögen und von einer starken gestalterischen Handschrift zeugen. Gleichzeitig verleihen vernakuläre Elemente wie die traditionellen Fensterläden der Architektur eine informelle Qualität, die massgeblich zur Eigenheit des Hauses beiträgt. Einem möglichen Material- und Farbenpotpourri wirkt Pascal Flammers Konzept, alles weiss zu streichen, so einfach wie effektiv entgegen. Marcel Bächtiger
Haus D, 2023
Hobelwerkweg 43, Winterthur
Bauherrschaft: Baugenossenschaft ‹Mehr als Wohnen›, Zürich
Bauherrenvertretung: Topik Partner, Zürich
Architektur: Pascal Flammer, Zürich
Re-Use: Baubüro In Situ, Zürich
Haus E: Wohnturm mit abgeschnittenen Ecken
An der Zugangsseite des Areals schlägt der Hobelwerkweg einen leichten Bogen. Die Parzelle weitet sich und macht Platz für ein kleines Wohnhochhaus mit neun Geschossen und getrimmten Ecken. Städtebaulich markiert es den Eingang zum Areal. Seine achteckige Grundform passt sich geometrisch in die rechtwinklige Ausrichtung der anderen Bauten ein und bildet einen organisch fliessenden Aussenraum. Das von Ramser Schmid Architekten entworfene Haus E ist das mysteriöseste der fünf Häuser auf dem Hobelwerk-Areal. Der objekthafte Wohnturm ist im Kern ausgehöhlt. Gegeneinander verdrehte, einläufige Treppen verbinden die kreisförmig umlaufenden Galerien miteinander und lassen einen Vertikalraum entstehen, der aufgrund der vielen Türen wie eine Art Panoptikum erscheint. Das Haus E bietet Wohnungen mit 2½ bis 6½ Zimmern. Pro Geschoss gibt es vier Wohnungen. Jede verfügt über einen vieleckigen Wohnraum mit vorgelagerter Loggia. Schlafzimmer, Bad und Toilette sind als rechtwinklige Räume in den achteckigen Grundriss eingeschrieben und definieren ein dem Wohnraum vorgelagertes Entrée mit schmaleren und weiteren Gängen.
Im ursprünglichen Wettbewerbsprojekt war im leicht erhöhten Erdgeschoss eine dickere Balkonschicht vorgesehen, die ebenfalls eine Wohnnutzung ermöglicht hätte. Mit der Übernahme des Projekts durch die Baugenossenschaft ‹Mehr als Wohnen› wurde das Raumprogramm gemischter: Nun befinden sich im Erdgeschoss Gästezimmer, ein Gemeinschaftsraum, ein Waschsalon sowie eine Mobilitätsstation, in der die Bewohner des Areals Velos, Cargobikes und Anhänger ausleihen können. Der Anspruch, statt Wohnungen für den gehobenen Mittelstand kostengünstigen Wohnraum anzubieten, hatte zwangsläufig gestalterische Folgen: Das als filigranes Gespinst entworfene Fassadengerüst mit Lisenen aus Stahlprofilen, die sich wie ein Kleid über den mit Eternit verkleideten Massivbau gestülpt hätten, wich einer konventionellen verputzten Kompaktfassade. Auch die Fensterflächen wurden reduziert. Die Fassade erreicht ihren formalen Ausdruck nun mit der unterschiedlichen Körnung des Putzes und einer grafischen Farbgestaltung entlang der vertikalen Wandteile, die das geometrische Spiel des Grundrisses in Rauten und Dreiecke übersetzt. Miriam Stierle
Haus E, 2023
Hobelwerkweg 45, Winterthur
Bauherrschaft: Baugenossenschaft ‹Mehr als Wohnen›, Zürich
Bauherrenvertretung: Topik Partner, Zürich
Architektur: Ramser Schmid, Zürich; Wild Baumanagement, Winterthur, und GOS, Winterthur
Themenheft ‹Lernen vom Hobelwerk›
Mehr Informationen zum Hobelwerk-Areal und zur Baugenossenschaft ‹Mehr als Wohnen› erhalten Sie im neuen Themenheft ‹Lernen vom Hobelwerk›. Es kann hier bestellt oder bequem als E-Paper gelesen werden.
Lernen vom Hobelwerk
Wo früher Holz gesägt wurde, wird heute gelebt. Mit dem Hobelwerk-Areal ist in Oberwinterthur ein kleines, charakteristisches Quartier aus Wohnbauten, Industriezeugen und Grünräumen entstanden. Dabei verfolgte die Baugenossenschaft ‹Mehr als Wohnen› ambitionierte Ziele, was Nachhaltigkeit, Partizipation und alternative Wohnformen betrifft.
Das Themenheft ‹Lernen vom Hobelwerk› dokumentiert die Geschichte des Areals, präsentiert und kommentiert die verschiedenen Architekturprojekte und beleuchtet die Ansätze zum emissionsarmen Bauen, zur Biodiversität und zur Mitwirkung der Menschen im Hobelwerk.
Die Baugenossenschaft ‹Mehr als Wohnen› geht auf das 100-Jahr-Jubiläum des gemeinnützigen Wohnungsbaus in Zürich im Jahr 2007 zurück. Ihre Projekte sind Ausdruck des Gründungsauftrags, eine Innovations- und Lernplattform zu sein, von der auch andere gemeinnützige Bauträgerschaften profitieren.
Das Hochparterre Themenheft kann hier bestellt oder bequem als E-Paper gelesen werden.










