Des Kaninchens Shortlist: Mehrfamilienhaus Sittertalstrasse 18
Das Kaninchen, der Senn-Förderpreis für junge Architektur, zeichnet das beste Erstlingswerk des Jahres aus. In einer kleinen Serie präsentieren wir die vier Projekte der engeren Wahl.
Am 2. Dezember feiert Hochparterre die ‹Besten› in Architektur, Design und Landschaft. Das ‹Kaninchen› ergänzt die traditionsreichen Hasen und prämiert ein realisiertes Erstlingswerk. Dieses Jahr gingen über zwanzig Bewerbungen ein – vom Umbau eines Dachstocks bis zum Schulhaus-Neubau, vom privaten Auftrag bis zum gewonnenen Wettbewerb. In einer kleinen Serie zeigen wir die vier Projekte, die in einer ersten Juryrunde auf die Shortlist gewählt wurden.
Heute folgt bereits der vierte und letzte Kandidat. Die Entscheidung, wer das Kaninchen für das beste Erstlingswerk 2025 gewinnt, wird am Dienstag, 2. Dezember an der Preisverleihung der ‹Besten› im Museum für Gestaltung bekannt gegeben.
Nun aber des Kaninchens Shortlist Nummer 4:
Mehrfamilienhaus Sittertalstrasse 18, St. Gallen
Architektur: Studio Romano Tiedje, St. Gallen
Und das schreiben die Architekt:innen:
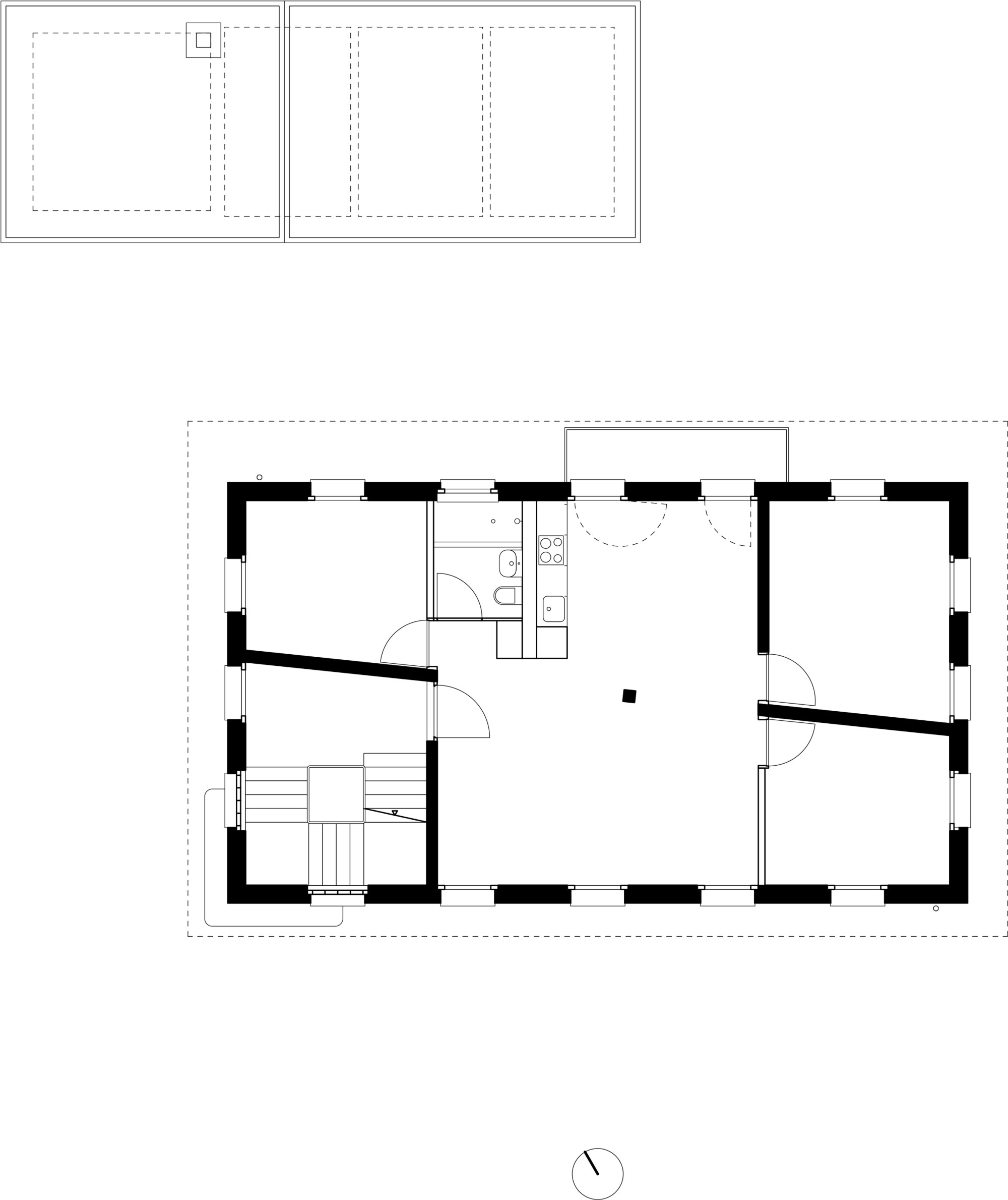
«Das viergeschossige Mehrfamilienhaus an der Sittertalstrasse in St. Gallen wird durch mehrere Parameter bestimmt. Dem landschaftlichen Kontext, welcher sich aus einer weitläufigen Umgebung, dem angrenzenden Waldrand und einer markant steilen Topografie zusammensetzt. Der hoch über dem Tal verlaufenden Fürstenlandbrücke, deren Schatten zu manchen Stunden das Grundstück streift und die Geschichte des Arbeiterhauses der ehemaligen Färberei.
Der Ersatzneubau greift die vorgefundenen Qualitäten des Bestandes auf, integriert diese und bringt sie bewusst wieder zum Vorschein. Der rechteckige Baukörper sitzt entlang der Strasse und bettet sich in das abfallende Gelände ein.

Die Geschosswohnungen mit ringsum gleichmässig gegliederten Fenstern schaffen einen starken Bezug zum umliegenden, charakterstarken Landschaftsraum. Die lebendige Waschputzfassade mit grünem Andeer Zuschlag, das gelbleuchtende Unterdach, die grünen Fensterläden aus Metall, in Kombination mit den glasierten Klinkern, erinnern an den Vorgängerbau und gliedern sich natürlich in das Ortsbild ein.
Die gemeinnützige Stiftung hausen+wohnen setzt sich im Raum St. Gallen für die Bereitstellung von zahlbarem Wohnraum ein. Das gemeinsame Ziel kostengünstig zu bauen, konnte durch entwurfliche Reduktionen und eine Einfachheit im Bauen erreicht werden. Gemauerten Aussenwände werden um drei Sichtbetonwände ergänzt, um einerseits die Erdbebenaussteifung zu gewährleisten und andererseits alle Installationen von Dosen und Schaltern einlegen zu können.
Das Mauerwerk im Innenraum bleibt unverputzt, die Holz-Metallfenster schliessen an den Decken an und lassen sich durch den innenbündigen Anschluss fast 180° auf die Aussenwand öffnen. Türdrücker und Fenstergriffe bleiben roh, die Decken und Wände sind schlank ausgeführt, es wird auf zusätzliche Stürzte verzichtet. Das Schalungsbild wird dem Ausführenden überlassen und die Schalungsqualität niedrig gehalten. Eine Stütze im zentralen Raum gliedert den durchgesteckten Wohn- und Essbereich. Das zentrale Mittelstück zwischen den Kammern ermöglicht durch raumhohe Türen Querbezüge durch die gesamte Wohnung. Bad und Küche siedeln sich zusammengefasst als Einbau an der Nordost-Fassade an. Die gelben Blockfutter der Türen und die Oberflächen des Einbaus bringen zusätzliche Wärme in den Innenraum und werden durch den naturfarbenen, beheizten Unterlagsboden ergänzt.
Die zentrale Trennwand zieht sich schräg über die gesamte Länge des Hauses. Diese Rotation ermöglicht im Grundriss eine Variation der Eckkammern, sowie ein grosszügiges, lichtdurchflutetes Treppenhaus. Auch am äusseren Erscheinungsbild des Hauses, an der leicht verdrehten Firstlinie und den asymmetrischen Giebelfassaden, lässt sich die Drehung ablesen und schafft eine Art Gegenbewegung zur dominanten Topografie. Das feine auskragende Blechdach soll die Einfachheit des Hauses unterstreichen. Balkone und eine Sitzbank aus feuerverzinktem Stahl ergänzen das Volumen und aktivieren den Aussenraum. Dieser geht fliessend in die angrenzenden Wiesen und Wälder über.»
Mehrfamilienhaus Sittertalstrasse 18, St. Gallen
Architektur und Bauleitung: Studio Romano Tiedje, St. Gallen
Bauherrschaft: Stiftung hausen + wohnen, St.Gallen
Bauleitung Rohbau: Näscher Bausupport, St. Gallen
Statik / Bauphysik: Gerevini Ingenieurbüro, St.Gallen
Kosten BKP 1-9: 1.85 Mio CHF
Verfahren: Direktauftrag
Zeitraum: 2019-2024
Kaninchen 2025
Förderpreis für das beste Erstlingswerk, gestiftet von SENN
Jury:
– Barbara Neff, Architektin, Zürich
– Martin Hofer, Immobilienexperte und Architekt, Gockhausen
– Norma Tollmann, Architektin, Basel (Gewinnerin 2023)
– Nicolas de Courten, Architekt, Lausanne (Gewinner 2024)
– Marcel Bächtiger, Redaktor Hochparterre (Leitung)
Preisverleihung der ‹Besten›
Die Hasen in Gold, Silber, Bronze, ein Kaninchen und drei Publikumspreise werden überreicht am Dienstag, 2. Dezember 2025, im Museum für Gestaltung Zürich, Ausstellungsstrasse 60, Zürich. 19 Uhr. Zur Anmeldung geht es hier.